PASSAGE VÉGÉTAL
Paris 15ème
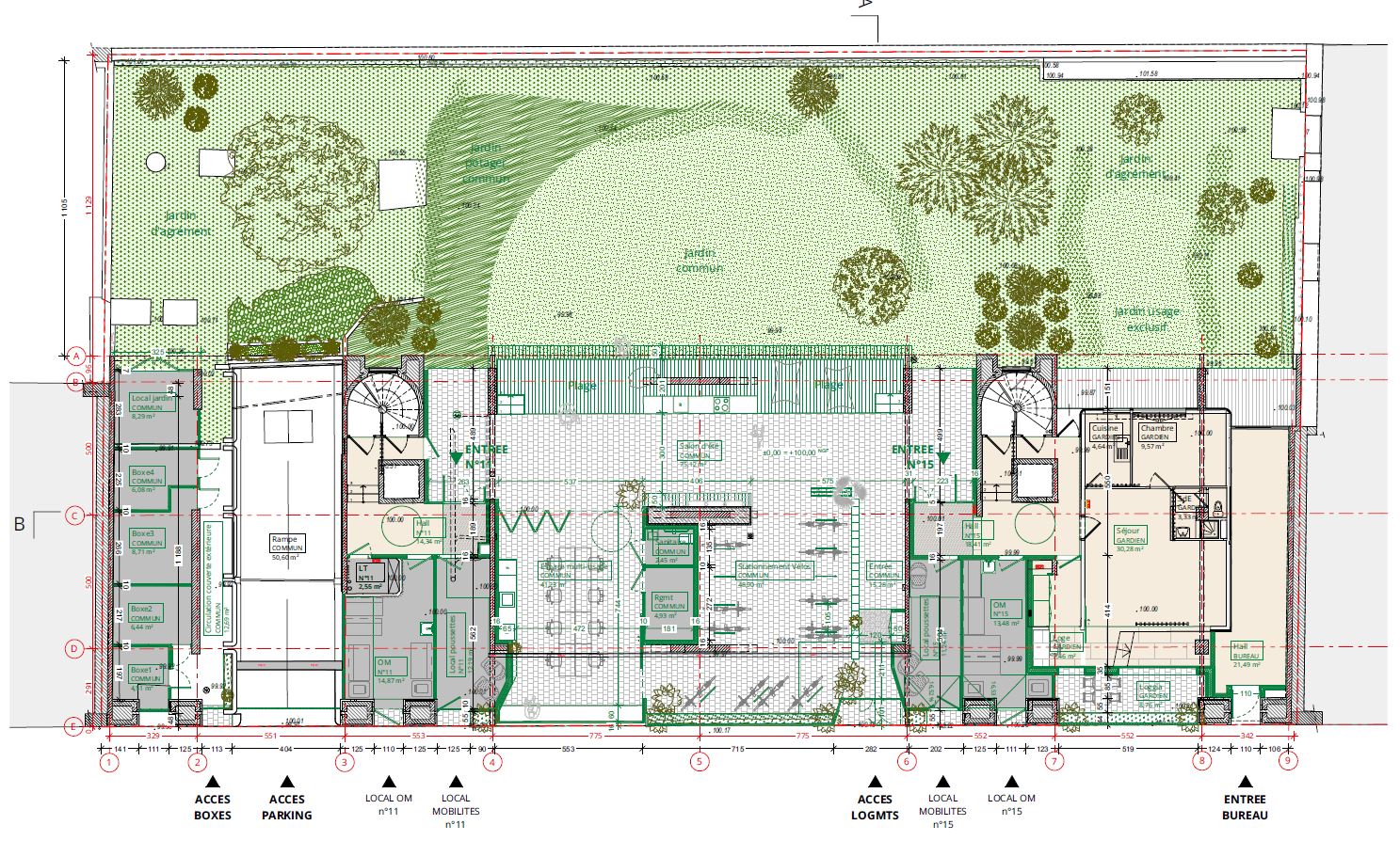
Le projet consiste à restructurer le hall d’une copropriété qui a décidé d’engager une réflexion approfondie pour revaloriser les parties communes.
Notre démarche architecturale propose une intervention ambitieuse et respectueuse des intentions initiales de l’architecte tout en répondant aux attentes actuelles des résidents.
Celle-ci est articulée autour de trois axes principaux :
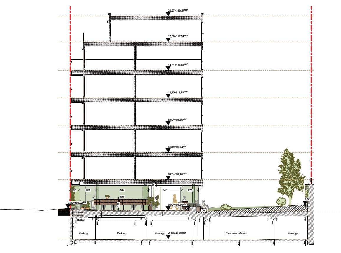
– renforcer la lisibilité du plan libre en réinterprétant la façade principale par un geste architectural fort, tout en matérialisant une frontière en limite de propriété
– reconnecter l’entrée et le paysage en créant une séquence harmonieuse entre la rue et le jardin. En exploitant la faible hauteur disponible du rez-de-chaussée, nous privilégions une horizontalité fluide et des vues traversantes valorisant le végétal
– redonner vie aux surfaces libres du rez-de-chaussée en les aménageant en espaces modulables, accessibles et polyvalents, destinés aux habitants.
Notre intervention s’inscrit dans une écriture résolument contemporaine, en dialogue avec la qualité intrinsèque de l’existant fidèle à l’esprit des années 70. Le projet assume son ancrage dans notre époque en introduisant des éléments architecturaux audacieux et vivants.
Le traitement des espaces fait la part belle à la lumière, au végétal et à la porosité : une palette verte s’étend dans des structures ouvertes, jouant entre transparence et filtre végétal. La pierre naturelle au sol renforce l’identité de la place publique, liant les deux halls et articulant avec élégance la transition entre la rue et le jardin.
Cette approche vise ainsi à offrir aux habitants une expérience renouvelée et enrichie, où esthétique, confort et fonctionnalité s’entrelacent harmonieusement.
Programme :
Restructuration des parties communes rez-de-chaussée d'un immeubleMissions :
Mission complèteStatut :
En coursSurface : 300m²
Budget : 400K €
Maîtrise d'ouvrage :
Cabinet GELISÉquipe :
Mandataire : Le28 Architectes




