Maison Académique des Mathématiques 2
Villemombe (93)
Dans le cadre du projet «Vers une nouvelle équation académique» porté par l’académie de Créteil, Le28 Architectes a réalisé la Maison Académique des Mathématiques au collège Jean Lolive à Pantin. Ce projet se décline en plusieurs axes, dont les aménagements dits « COPERNIC » déployés dans plusieurs collèges.
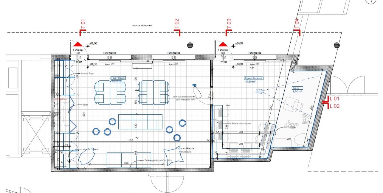
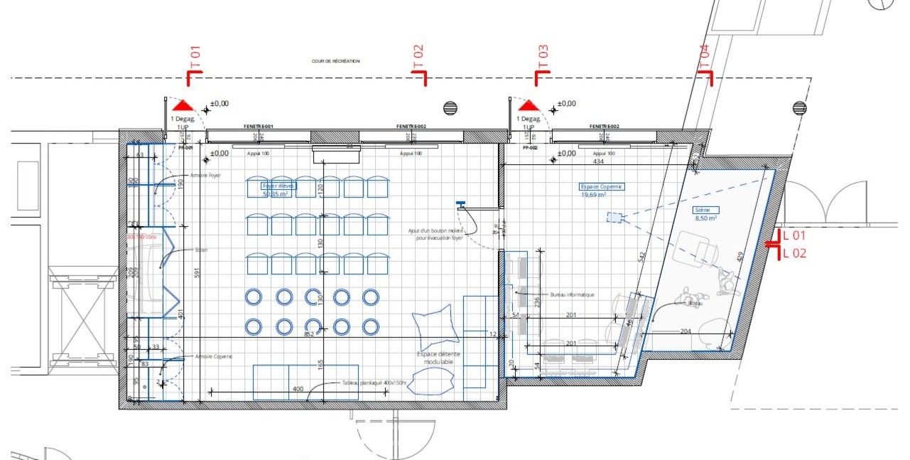
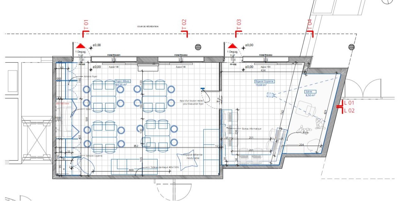
Ici, nous réalisons le tout premier aménagement COPERNIC au collège Jean de Beaumont à Villemomble.
Cet espace conserve sa volumétrie et sa matérialité existante. Dans un soucis écologique et économique, il nous semblait indispensable de préserver au maximum les ressources existantes sur place. Nous sommes intervenu sur l’agencement et le mobilier, proposant de nouveaux espaces modulaires, accueillants et confortables. Plusieurs configurations peuvent animer l’espace en conférence, en classe entière, en demi classe et en foyer des élèves. Chacun sera ici mis à son aise et devra se sentir écouté et libéré du cadre scolaire permettant une nouvelle approche des mathématique moins formelle.
Nous avons également apporté des éléments identitaires visuels forts qui permettent à cet espace d’être un vrai symbole, démonstrateur de l’engagement de l’académie de Créteil et du département. Cette annexe Copernic doit est percue comme un vrai lieu des possibles.
Programme :
Réalisation de l'Annexe COPERNIC au collège Jean de Beaumont à VillemombleMissions :
Mission de programmation participative, d’études et de suivi de réalisationStatut :
RéaliséSurface : 70m²
Budget :
Maîtrise d'ouvrage :
Département de la Seine Saint DenisÉquipe :
Mandataire : Le28 Architectes























